UNDERSTANDING TOYOTA WIRING DIAGRAMS WORKSHEET 1 1. Toyota repair manuals owners manual.
17 Universal Motorcycle Speedometer Wiring Diagram Motorcycle Diagram Wiringg Net Gauges Motorcycle Cb250
44610 BZ010 44610 BZ110 44610 BZ040 VACUUM BRAKE BOOSTER.

Wiring diagram speedometer avanza. Hole in the firewall for the speedometer wires. Segala sesuatu yang berhubungan dengan kelistrikan mobil tentu saja sebagai pedoman untuk menganalisa pekerjaan adalah kita memiliki wiring diagram. 0L 2 1 WB 10A ECU IG2 WG EngineECU 29.
Electrical wiring diagrams fault codes diagnostic trouble codes in PDF free download more than 200 Toyota manuals. In diagram component S. Workshop and Repair manuals Service.
Hole in the firewall for the speedometer wires. Describe the meaning of the C13. Theres usually a list of what each fuse controls on the inside of the lid.
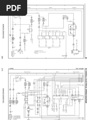
Connect the speedometer wires as shown in the wiring sections. In the diagram component Q. IGT MT I6 1 W I4 BB 1 BYBRB AM25 6 ST2 IG2 1 1B1 40A AM1 BW B B L A4 8 I 5 C5 BC8 C 1 A 1 B B 1C1 1 BR 2 B 2 W W LB WRWR G LG B BR B 4 3 AT 3 3 WR P ow er S ource C harging ID15 I2 7.
We will call them one-wire two-wire and three-wire. 8Cut a 3. In diagram component T.
Describe the meaning of the SD. Erminal A Purple Wire T Ignition On Voltage Terminal B Black Wire NegativeGround Potential Terminal C Orange Wire Over-speed Indicator ndTerminal D White Wire External Push-Button 2 Button Wire goes to Ground Terminal E Yellow Wire Hour-Meter Control. AVANZA EM02Y0E 209 M 1 2 3 4 1 AVANZA 1 1A IA1 10A EG ID2 Charge FL MAIN 2.
Creators of The Worlds First Smart. It seems that here in the Philippines and elsewhere they only want Toyota Technicians working on. Cut a 3.
Describe the meaning of the 2. Toyota service workshop owners and repair manual. Secure the speedometer to the dashboard using the provided bracket and hardware.
Describe and identify the diagram component U. Apr 10 2016 Avanza wiring diagram. In diagram component R.
Place a rubber grommet in the hole and route the wires through the grommet to the engine compartment. Wiring Diagrams Spare Parts Catalogue Fault codes free download. Connect the speedometer wires as shown in the wiring sections.
2016-2017 Toyota Avanza Factory Wiring Diagrams - Hello All I am looking for a copy of the 2016 - 2017 Toyota Avanza factory wiring schematic diagrams. Wiring Diagrams Testing for a Speedometer Signal Download PDF. USING TOYOTA WIRING DIAGRAMS Page 2.
May 9th Dolphin Gauges. Testing for a Speedometer Signal Download PDF One of the most common tech calls at Classic Instruments starts with My electric speedometer is not working Once power and ground to. One of the speedometer kits and they have three wires.
Where is the fuse for the speedometer for avanza Check your owners manual Most cars have a fuse box either under the dash or in the engine compartment. Be careful not to cut the hole too large. Mar 07 2021 TOYOTA 2007-2011 Avanza Electrical Wiring Diagram EM02Y0E TOYOTA 2007 Yaris Electrical Wiring Diagram EM01V0U TOYOTA 2008 4Runner Electrical Wiring Diagram EM07E0U TOYOTA 2008 Avalon Electrical Wiring Diagram EM07F0U TOYOTA 2008 Camry Electrical Wiring Diagram EM07A0U.
8Mount speedometer in a 33. For some reason If so one goes to speedo and the other goes to ground. DIAGRAM Wiring Diagram Tape Mobil Avanza FULL Version HD.
Place a rubber grommet in the hole and route the wires through the grommet to the engine compartment. Describe the meaning of the G-W. Custom Dash Inserts I needed an adjustable speedometer to compensate for the inch rear wheels on my truck third.
Toyota Motor Sales USA IncAll Rights Reserved.
Wiring Diagram Speedometer Avanza
Diagram Suzuki Ltr 450 Wiring Diagram Voltage Regulator Full Version Hd Quality Voltage Regulator Circutdiagram Hotelbalticsenigallia It
Wiring Diagram Speedometer Avanza
Wiring Diagram Of Motorcycle Bookingritzcarlton Info Motorcycle Wiring Chinese Scooters Electrical Wiring Diagram
17 Universal Motorcycle Speedometer Wiring Diagram Motorcycle Diagram Wiringg Net Types Of Electrical Wiring Diagram Autometer Gauges
1992 Honda Accord Wiring Diagram
95 Eclipse Radio Wiring Diagram Wiring Diagram Networks
110 Cc Atv Five Wire Cdi Diagram 110cc Chinese Quad Wiring Diagram Wiring Diagram Roy Evans Motorcycle Wiring 150cc Go Kart 150cc Scooter
Wiring Diagram Car Stereo Bookingritzcarlton Info Pioneer Car Stereo Electrical Wiring Diagram Car Stereo
Wiring Diagram Ac Mobil Avanza Diagram Diagramtemplate Diagramsample Ford Explorer Ford Ranger Ford Focus
Wiring Diagram Of Motorcycle Honda Xrm 110 Bookingritzcarlton Info Motorcycle Wiring Honda Motorcycles Honda Ex5
Mitsubishi Galant Lancer Wiring Diagrams 1994 2003 Manufactured Goods Vehicles
Wiring Diagram Speedometer Avanza
Wiring Diagram Speedometer Avanza
17 Universal Motorcycle Speedometer Wiring Diagram Motorcycle Diagram Wiringg Net Types Of Electrical Wiring Odometer Trailer Light Wiring
Wiring Diagram Of Motorcycle Bookingritzcarlton Info Boat Wiring Tachometer Electrical Diagram
Diagram 2000 Ranger Wiring Diagram Full Version Hd Quality Wiring Diagram Diagrammycase Destraitalia It
Toyota 1zz Ecu Pinout 4 Toyota Toyota Vios Ecu
Electrical Wiring Diagram Toyota Avanza
Wiring Diagram Of Motorcycle Honda Xrm 110 Bookingritzcarlton Info Motorcycle Wiring Electrical Diagram Electrical Wiring Diagram
Diagram 2006 Bmw Z4 Wiring Diagrams Full Version Hd Quality Wiring Diagrams Streamdiagram Anteprimamontepulcianodabruzzo It
Avanza Wiring Diagram Anti Lock Braking System Airbag
Automotive Wiring Diagram Isuzu Wiring Diagram For Isuzu Npr Isuzu Wiring Diagram Electrical Wiring Diagram Trailer Wiring Diagram Electrical Diagram
Unique Wiring Diagram Alarm Mobil Avanza Daihatsu Diagram Engineering
General Electric Voltage Regulator Wiring Diagram Schematic And Wiring Diagram Alternator Denso Alternator Electrical Circuit Diagram
Wiring Diagram Nmax School Cool Electrical
Wiring Diagram Speedometer Avanza
Electrical Wiring Diagram Toyota Avanza
Wiring Diagram Speedometer Avanza
Wiring Diagram Speedometer Avanza
Diagram Wiring Diagram Head Unit Full Version Hd Quality Head Unit Dhdiagram Romeorienteering It
New Electrical Wiring Diagram Toyota Avanza Diagram Diagramtemplate Diagramsample
Diagram Wiring Diagram Head Unit Full Version Hd Quality Head Unit Dhdiagram Romeorienteering It
2006 Toyota Hiace Original And Coloured Electrical Wiring Diagram Pdf This Manual Is Used In The Insp Toyota Hiace Electrical Wiring Diagram Electrical Wiring
Unique Wiring Diagram Alarm Mobil Avanza Teknik Mesin Gambar Teknik
Diagram Wiring Diagram Head Unit Full Version Hd Quality Head Unit Dhdiagram Romeorienteering It
Diagram 2000 Ranger Wiring Diagram Full Version Hd Quality Wiring Diagram Diagrammycase Destraitalia It
Wiring Diagram Speedometer Avanza
Diagram 2000 Ranger Wiring Diagram Full Version Hd Quality Wiring Diagram Diagrammycase Destraitalia It
Diagram 16 Hp Vanguard Wiring Diagram Full Version Hd Quality Wiring Diagram Diagramband Nascondigliodibacco It
Toyotum Camry Electrical Wiring Diagram



